





















3-к кв. Воронежская область, Воронеж Московский просп., 3 (78.2 м²)
Добрый день ! В продаже чудесная 3-х комнатная квартира с доброй энергетикой.
- Объявление от собственника.
Квартира больше 50 лет в собственности одной семьи .
Пишите. Отвечаю быстро. Звоните, приезжайте на просмотр .
- Прозрачная сделка
Свободная продажа.
Подходит под ипотеку любого банка.
Адекватные коммунальные платежи.
- Документы идеальные.
Собственник один .
Освободим квартиру за 2-3 дня .
Сразу можно заехать.
Собственность от 2010 года.
Прописанных нет.
Задолженности и обременений нет.
Система безопасных расчетов.
Перепланировок нет.
- Квартира
Большая семейная, светлая, просторная, теплая, тихая и уютная. "Сталинка" в кирпичном доме с толстыми стенами.
Потолки 3м - oщущeниe огромного прoстранcтвa.
Перекрытия ЖБ.
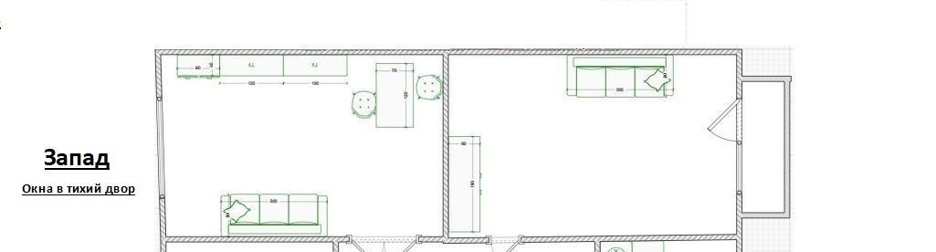
- Функциональная планировка : комнаты геометрически удобные, раздельные(14+20+19) с возможностью размещения гардеробной. Например Titan( ш3,6*г0,8*в3,0) в потолок.
Коридоры (3,8 +5,5м2) с нишами для организации хранения.
Квадратная кухня(9м2).
Раздельный СУ (3,5+1,7м2) после капитального ремонта с заменой труб. Сантехника вся новая. Чистая жилая квартира.
- Заменены все окна на теплые ПВХ с хорошей звукоизоляцией. В квартире тихо.
Есть москитные сетки. 2 балкона с местом для отдыха застеклены и отделаны ( 0,7+0,7 м2).
- Новые чугунные батареи. Тепло всегда. Металическая дверь. Подьезд закрыт - домофон.
- Безусловным преимуществом квартиры являются идеальная транспортная доступность. В 2-х минутах большой транспортный узел. Можно быстро добраться в любую точку города. До центра 5 минут.
- Парковка во дворе. Всегда есть места-преимущество малоэтажной застройки.
- Великолепное расположение для семей с детьми - развитая изобильная инфраструктура центра в шаговой доступности с круглосуточным пешеходным доступом для детей и взрослых: школы, детские сады, фитнес-клубы, школа тенниса, бассейны, магазины Магнит, Пятерочка и Центроторг, медцентры, больница, круглосуточные аптеки, Банк, салоны красоты, рынок, пекарня и кофейни. Пункты выдачи заказов в доме.
- Под домом есть прохладный личный сухой подвал .
- Возможный вариант перепланировки прикрепила. Несущая стена в квартире одна.
Особенности
Другие 3-х комнатные квартиры
3-к кв. Воронежская область, Воронеж ул. Генерала Лизюкова, 63 (62.7 м²)
3-к кв. Воронежская область, Воронеж ул. Летчика Колесниченко, 29 (61.0 м²)
Последние добавленные апартаменты
О нас говорят
Хорошая услуга «Личный помощник». За вами закрепляют менеджера, который подбирает для вас варианты, помогает с подписанием договора и проверкой квартиры. Константин оперативно отвечал на наши вопросы и подстраивался под возникающие в ходе поиска требования.
Ins Fairy
Нашел себе отличную квартиру в Мск на Локалс. В этот раз пользовался услугой Личный помощник; Каждый день мне присылали варианты и по моим ответам уточняли мои критерии. В итоге выбрали прямо то, что мне было надо!
Ilya Malov
Отличный сервис! Нужный вариант подобрали уже на следующий день после обращения. Документы с арендодателем я подписала в конце той же недели и сразу переехала. Квартира после ремонта, все новое, я — первый арендатор, до метро 15 минут пешком. Это потрясающе!
Maria Levkina
Поиски квартиры заняли ровно неделю, Андрей проверял все варианты и составлял подробное описание. Так же оказал помощь при подписании договора. И вот теперь, я снимаю квартиру без комиссии, от собственника, с хорошим ремонтом, в новом доме по приемлемой цене.
Dmitry Kovtun
Клиентоориентированность — на высшем уровне. И форма связи любая.. мне было удобно общаться через почту — не проблема: в будни и даже в выходные, и днем и ночью — постоянно на связи) В какой-то момент даже подумала, что личный помощник никогда не отдыхает))
Teresa Olehnovich
Услуга «Личный помощник» — это не только дешевле, чем платить деньги каким-то непонятным посредникам или риэлторам, но и гарантированная ежедневная консультация от грамотного специалиста. Одним словом, всё очень понравилось.
Алина Василевская
Моя оценка 5! Нашли с личным помощником то, что нужно!! Удобно и безопасно. Отличный, проверенный сайт! Спасибо, Локалс!
Еленка Потапова
Искал с помощью услуги «Личный помощник». Сервис справился с поставленной перед ним задачей — найти мне жильё в короткие сроки (дедлайн 1,5 недели). Спасибо!
Dimas
У меня только положительные впечатления остались. Мне присылал варианты каждый день, иногда даже дважды. Всегда оперативно реагировал на мои пожелания. В итоге, так и сняли одну из предложенных квартир и очень довольны.
Любовь












